GTZ 60 Office - Türzargen
GTZ 60 Office - 8-10 mm Glastüren und 40 mm Holztüren, stumpf:

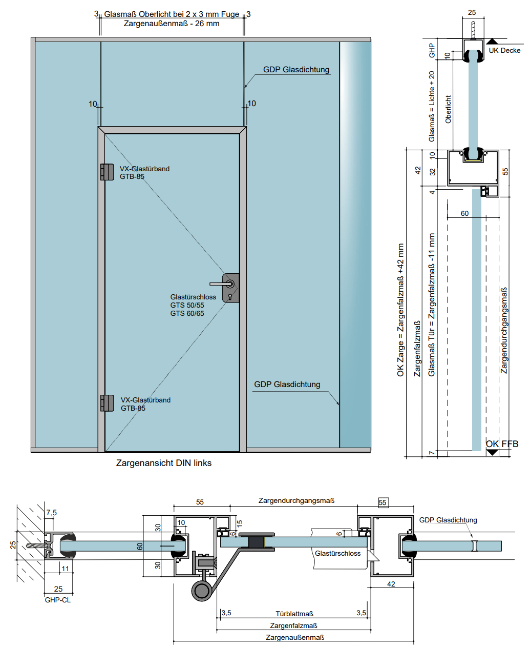
Ansichten und Schnitte Glastürzarge mit Oberlicht:

Ansicht Glastürzarge mit Glastüre DIN links und DIN rechts:

Ansichten und Schnitte Zarge mit Oberlicht:

Ansicht Türzarge mit Holztüre DIN links und DIN rechts:

Definition der Bandbezugslinie:

1 bis 2 (von insgesamt 2)